top of page

Create Your First Project

Start adding your projects to your portfolio. Click on "Manage Projects" to get started

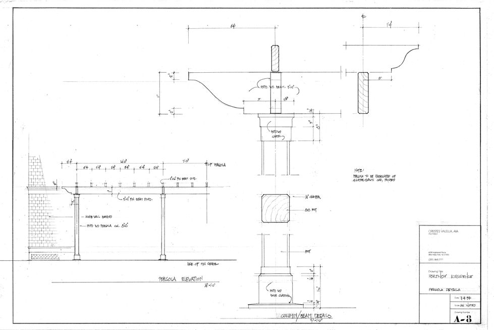
Private Residence

Location

Clinton Academy Lane Amagansett, New York

Date

Design and Construction : 1998-99

General renovation of an existing beach house

bottom of page